Questions
Why do I never see a ceiling in my dreams of rooms? Do we ever ‘see’ all the walls inside a room?
How can I use all senses to design & know a whole room? Is this possible: when a house begins as fragments on paper: plan, elevation, section? What is the difference between the paper and the page?
Is the house made from sentences? Is house a noun?
Is space as flat as the word housing? Can I move through that?
As I pass through, is the house a passage, a text? Is the room a space where the page bears witness?
Where is memory?
What memories do I have of houses? How does memory make or re‐make form?
Do I want a house to resist being political? religious? & resist assimilation? Is my house ‘in exile’?
What did Robert Kelly mean when he said: “Landscape is something we create by our perception of it?”
How can the house ride on language and site lines without drowning in the abstractions of style?
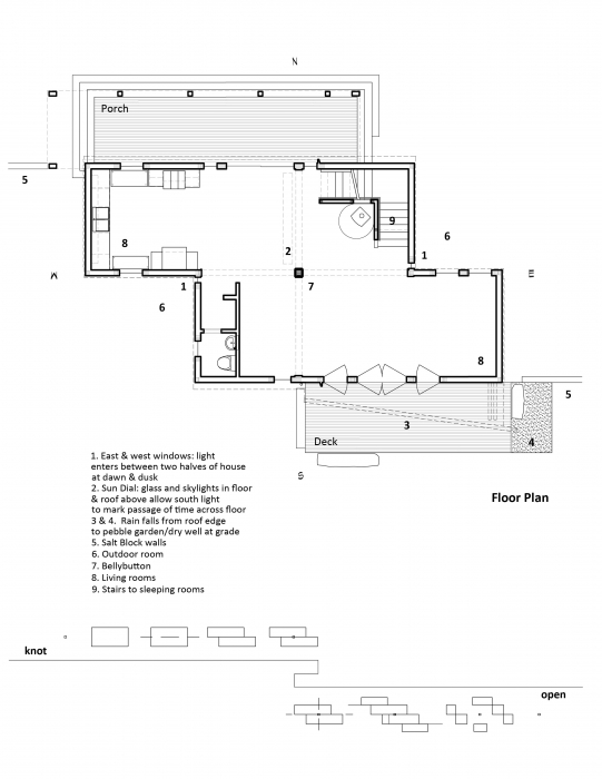
How has a house a body? What kind of body am I in a house? am I a knot?
Why am I so fascinated by knots, cups & swastikas? (The knot is the first room – and belly button. Forget about swastikas for now. Read about the Dogon.) Is the house a knot?
Where is the house? Which Indians named the forest there? How do I scale the story?
How is the home a place I share with friends and strangers? Will they measure my house?
What is measure? Who will measure? Who is there?
Will a house hide in my eyes? Where is the house’s one‐word cloud, its paper moon? If the knot is space . . . turning into cups . . . on a line indoors and outdoors . . . and each house has a bellybutton attached to my dream ceiling . . . then where is the muscle?
What did I mean when I wrote: “‐‐this house is L’s heart‐muscle ‐– a passage through chambers.” Are the chambers exclusive? Can someone sell them?
Where are you? Will the house address you? Where is the world speaking? Do I need a house to know?
